Re-tooling the mall
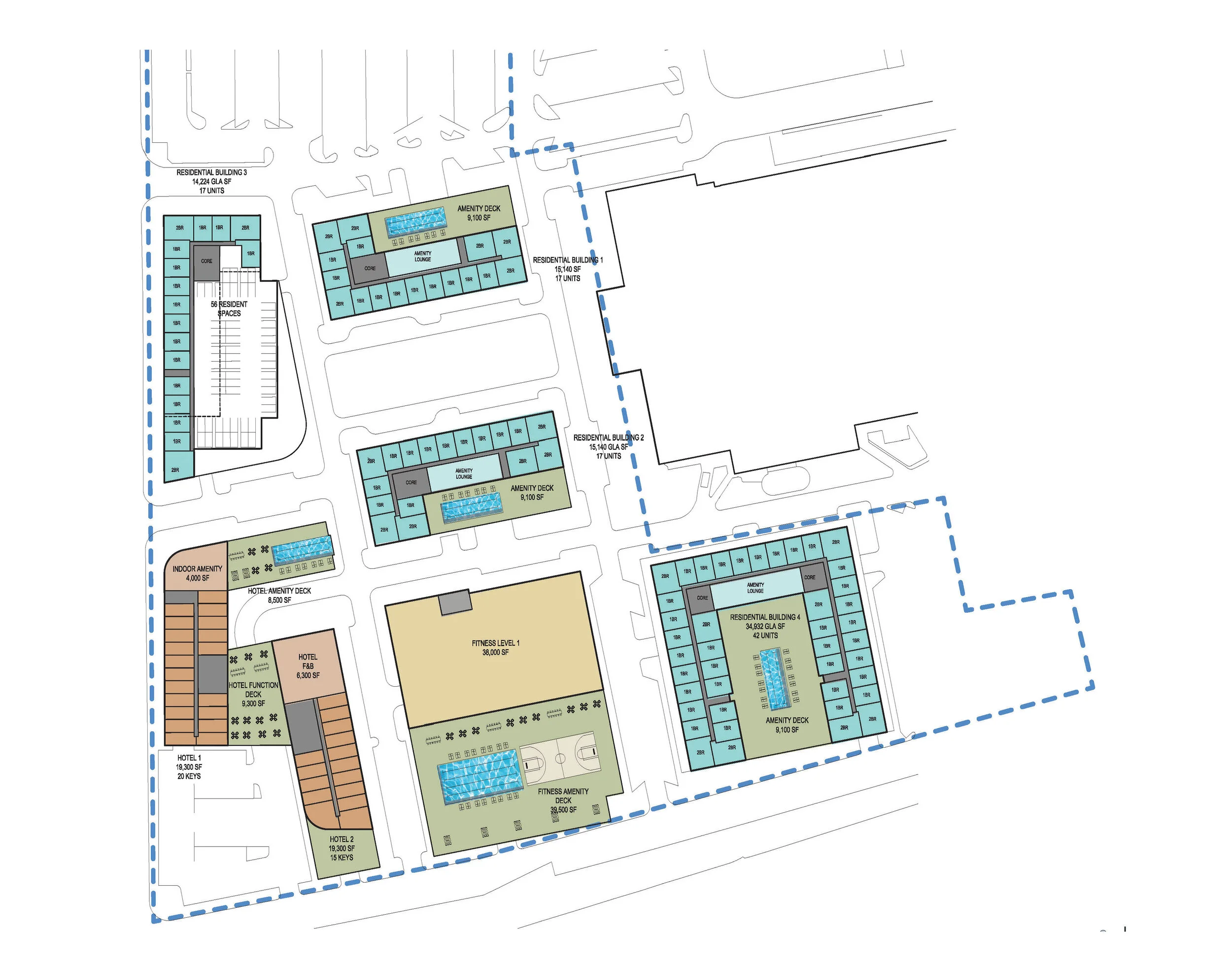
With CallisonRTKL, worked with Macerich leadership team to re-develop an existing mall in Ceritos, CA. Project proposed demolishing the existing Sears anchor and replacing it with a new, mixed use development.
With CallisonRTKL, worked with Macerich leadership team to re-develop an existing mall in Ceritos, CA. Project proposed demolishing the existing Sears anchor and replacing it with a new, mixed use development.